- 94 m²
- 2 slaapkamers
Nieuwbouw appartement
Prachtig nieuwbouw appartement te huur in het centrum van Herent.
Vlak bij het trein station ( Leuven - Brussel ) en op een boogscheut van de oprit van de autostrade.
Zeer vlotte bereikbaarheid voor winkels.
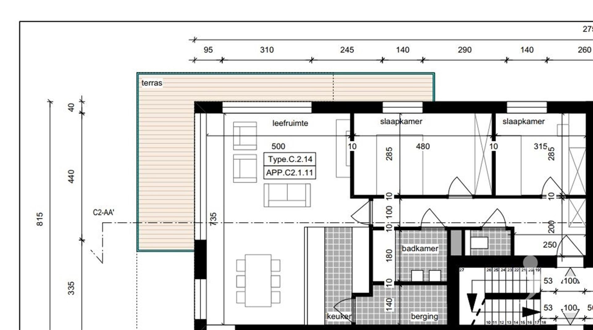
Het appartement is voorzien van een ruime lichtrijke leefruimte, een mooi hoek terras dat zowel op het zuiden als het westen gelegen is, een ruime afgewerkte keuken met alle nodige ingebouwde toestellen ( vitro keramische kookplaat, frigo met diepvriesvak, oven, afwasmachine, dubbele afwastafel ) alsook een mooi ingerichte badkamer met bad met douche functie, dubbele wastafel met meubel en een handdoek verwarming.
Op de gang is er een apart toilet met wastafeltje en naast de keuken is er tevens nog een ruime berging met technische ruimte en wasplaats.
Er zijn 2 mooie slaapkamers van 9 en 13m².
In de inkomhal past een vestiaire.
Voor de wagen zijn er 2 ondergrondse open staanplaatsen, een afgesloten berging en er zijn ook 2 fietsenstalling plaatsen voorzien.
Het appartement heeft zeer strenge milieunormen en heeft door het lage E-peil een zuinig verbruik.
Beschikbaar op 1 augustus 2026.
Voorschot op maandelijkse lasten 75 euro.
Interesse? Vraag uw bezoek aan via onze website.
Vlak bij het trein station ( Leuven - Brussel ) en op een boogscheut van de oprit van de autostrade.
Zeer vlotte bereikbaarheid voor winkels.
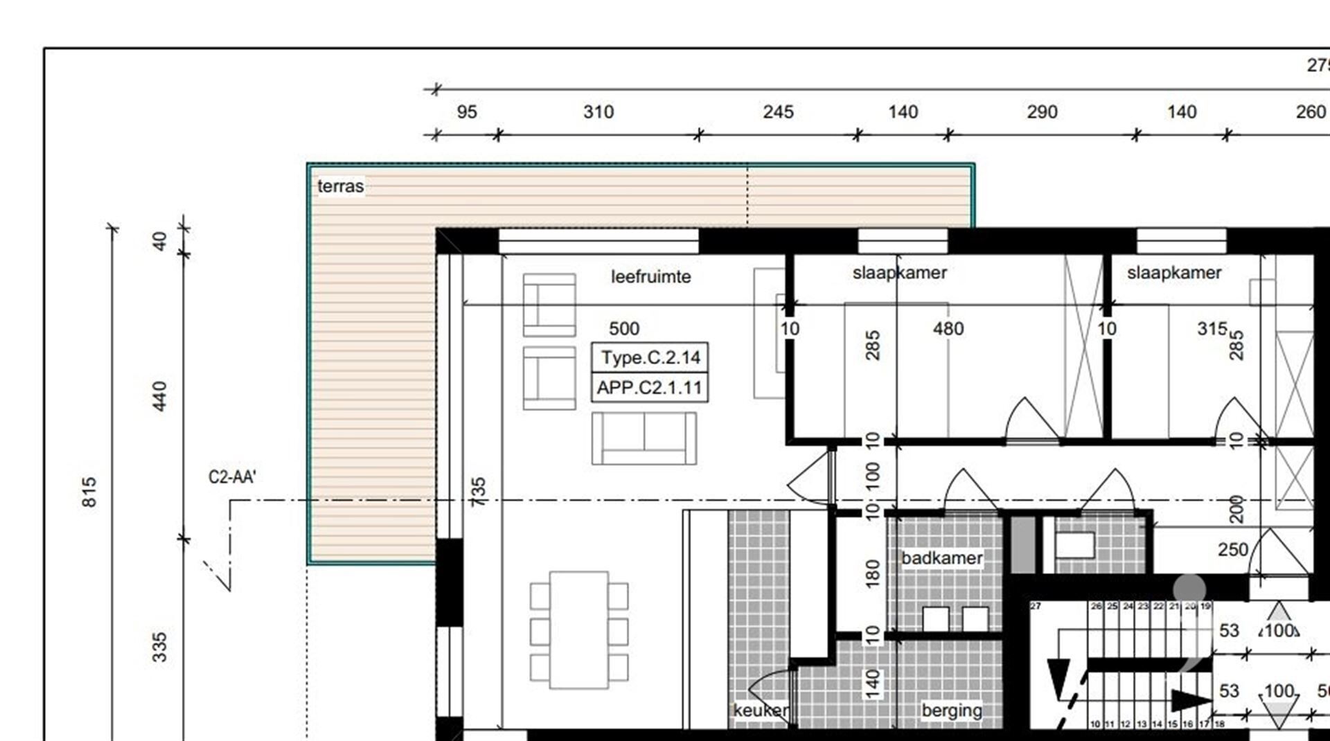
Het appartement is voorzien van een ruime lichtrijke leefruimte, een mooi hoek terras dat zowel op het zuiden als het westen gelegen is, een ruime afgewerkte keuken met alle nodige ingebouwde toestellen ( vitro keramische kookplaat, frigo met diepvriesvak, oven, afwasmachine, dubbele afwastafel ) alsook een mooi ingerichte badkamer met bad met douche functie, dubbele wastafel met meubel en een handdoek verwarming.
Op de gang is er een apart toilet met wastafeltje en naast de keuken is er tevens nog een ruime berging met technische ruimte en wasplaats.
Er zijn 2 mooie slaapkamers van 9 en 13m².
In de inkomhal past een vestiaire.
Voor de wagen zijn er 2 ondergrondse open staanplaatsen, een afgesloten berging en er zijn ook 2 fietsenstalling plaatsen voorzien.
Het appartement heeft zeer strenge milieunormen en heeft door het lage E-peil een zuinig verbruik.
Beschikbaar op 1 augustus 2026.
Voorschot op maandelijkse lasten 75 euro.
Interesse? Vraag uw bezoek aan via onze website.
Thomas Vanbever
016 15 31 15
thomas@immolivit.be
- Nettoprijs
- € 1.250 per maand
- Beschikbaarheid
- 01 augustus 2026
- Prijs kosten
- € 75 p/m
- Contracttype
- 9 jaar
- Bewoonbare opp.
- 94,0 m²
- Constructie
- Gesloten
- Bouwjaar
- 2021
- Verdieping
- 2
- Type dak
- Platdak
- Oriëntatie terras
- Zuid
- Slaapkamers
- 2
- Badkamers
- 1
- Toiletten
- 1
- Kelder
- Ja
- Type keuken
- Alle comfort
- Terras opp.
- 20,0 m²
- Terras
- Ja
- Omgeving school
- 907 m
- Omgeving openbaar vervoer
- 124 m
- Omgeving winkels
- 1.656 m
- Omgeving autosnelweg
- 2.040 m
- Omgeving station
- 377 m
- Parking
- 1
- Elektriciteit
- Ja
- Videofoon
- Ja
- Lift
- Ja
- Aansluiting gas
- Ja
- Telefoon
- Ja
- Aansluiting water
- Ja
- Automatische garagepoort
- Ja
- E-level
- 30
- Beglazing
- Dubbele beglazing
- Elektriciteitskeuring
- Ja, conform
- Verwarming
- CV op gas
Zelf zorgeloos verhuren?
Maak kennis met onze uitgebreide dienst Rentmeesterschap. We beheren je verhuurdossier van A tot Z. Je blijft nauwgezet op de hoogte, maar verhuurt zonder zorgen.
Ontdek RentmeesterschapNiet gevonden wat u zocht? Blijf op de hoogte van ons nieuwe aanbod.
We zoeken graag verder naar een geschikte huurwoning voor je.
Schrijf u in