- 160 m²
- 3 slaapkamers
VELDSTRAAT 22A BEGIJNENDIJK
Ontdek deze energiezuinige halfopen bebouwing in het project Veldzicht, gelegen op een rustige en groene locatie nabij het centrum van Begijnendijk.
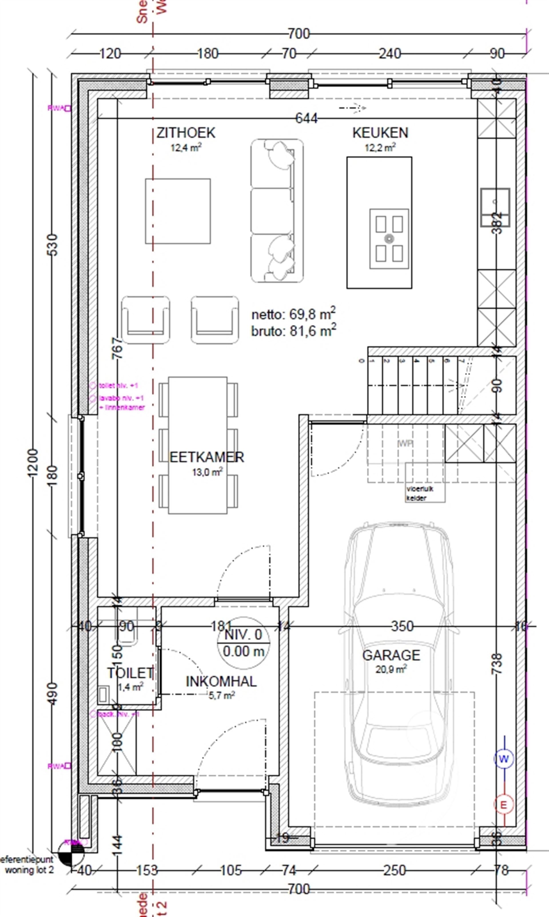
Bij binnenkomst is er een inkomhal met gastentoilet, gevolgd door een praktische garage. De open leefruimte met zithoek, eetkamer en keuken biedt een uitzicht op de tuin met achterliggende groene weide.
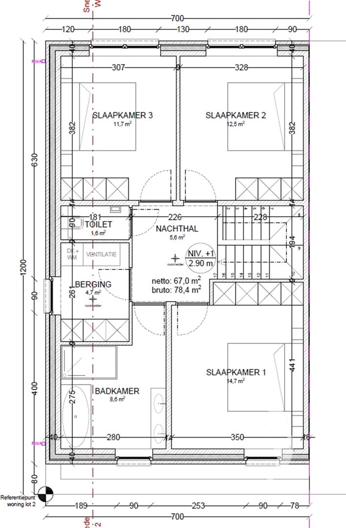
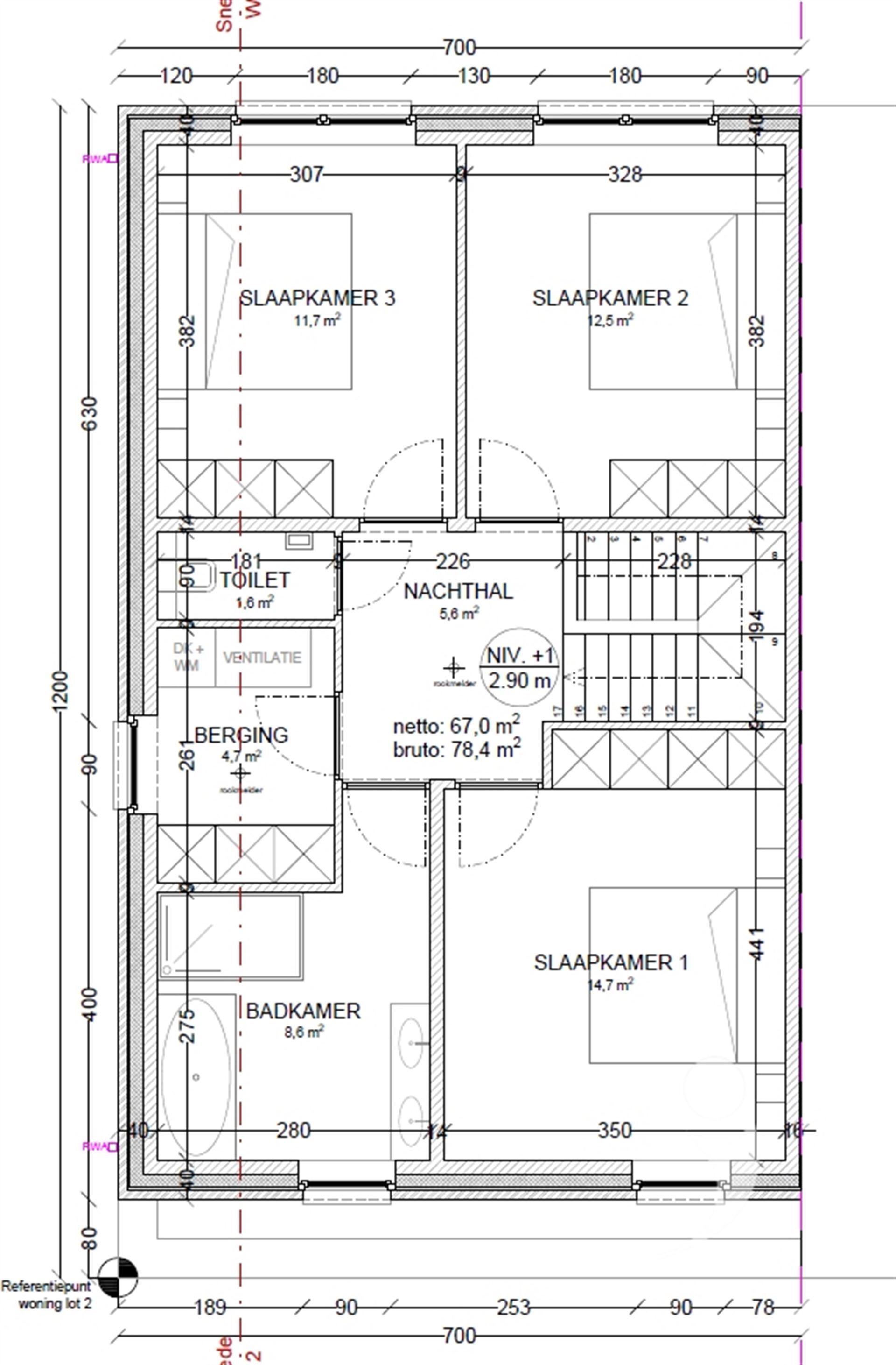
Op de eerste verdieping vind je een nachthal, een apart toilet, drie volwaardige slaapkamers, een handige bergruimte met aansluitingen voor wasmachine en droogkast, en een moderne badkamer met ligbad, douche en dubbele wastafel.
Deze woning is uitgerust met zonnepanelen (4500 Wp), een warmtepomp gekoppeld aan vloerverwarming, ventilatiesysteem type D en regenwaterrecuperatie. Beslis tijdig en pas de woning naar jouw eigen wens aan!
*Project Veldzicht is momenteel in opbouw. Verkoop onder de Wet Breyne (12% registratierechten op de grond, 21% btw op de constructie).
Interesse in deze woning? Contacteer ons op 016 15 31 15 of info@immolivit.be
Bij binnenkomst is er een inkomhal met gastentoilet, gevolgd door een praktische garage. De open leefruimte met zithoek, eetkamer en keuken biedt een uitzicht op de tuin met achterliggende groene weide.
Op de eerste verdieping vind je een nachthal, een apart toilet, drie volwaardige slaapkamers, een handige bergruimte met aansluitingen voor wasmachine en droogkast, en een moderne badkamer met ligbad, douche en dubbele wastafel.
Deze woning is uitgerust met zonnepanelen (4500 Wp), een warmtepomp gekoppeld aan vloerverwarming, ventilatiesysteem type D en regenwaterrecuperatie. Beslis tijdig en pas de woning naar jouw eigen wens aan!
*Project Veldzicht is momenteel in opbouw. Verkoop onder de Wet Breyne (12% registratierechten op de grond, 21% btw op de constructie).
Interesse in deze woning? Contacteer ons op 016 15 31 15 of info@immolivit.be
Leander Noterdame
016 15 31 15
leander@immolivit.be
- Nettoprijs
- € 449.500
- Bewoonbare opp.
- 160,0 m²
- Constructie
- Halfopen
- Bouwjaar
- 2026
- Verdieping(en)
- 2
- Gevelbreedte
- 7,0 m
- Type dak
- Platdak
- Perceel opp.
- 400,0 m²
- Terreinbreedte
- 10 m
- Terreindiepte
- 40 m
- Tuin
- Ja
- Oriëntatie tuin
- Noordwest
- Oriëntatie terras
- Noordwest
- Slaapkamers
- 3
- Badkamers
- 1
- Toiletten
- 2
- Type keuken
- Alle comfort
- Omgeving school
- 963 m
- Omgeving openbaar vervoer
- 377 m
- Omgeving station
- 580 m
- Garage
- 1
- E-level
- 30
- Type ramen
- PVC
- Beglazing
- Dubbele beglazing
- Elektriciteitskeuring
- Ja, conform
- Verwarming
- Warmtepomp
- Type verwarming
- Individueel
- Bestemming
- Woongebied
- Bouwvergunning
- Ja
- Verkavelingsvergunning
- Ja
- Voorkooprecht
- Nee
- Dagvaarding
- Geen rechterlijke herstelmaatregel of bestuurlijke maatregel opgelegd
- P-score
- A
- G-score
- A
- Kadaster sectie
- B
- Kadaster nummer
- 1227/00B000
- Kadaster afdeling
- 1
In de buurt
| Locatie | |||
|---|---|---|---|
| Bakker (0,95 km) | 12 min | 3 min | — |
| Grootwarenhuizen (Okay, Carrefour Market) (1,10 km) | 16 min | 5 min | — |
| Kinderdagverblijf Hupskadee (0,60 km) | 8 min | 2 min | — |
| Begijnendijk station (0,45 km) | 6 min | 2 min | — |
Uw eigendom verkopen? Vraag nu een gratis schatting aan!
De waarde van je eigen woning kennen kan je helpen bij je zoektocht naar iets nieuws. We geven je hierover graag het gepaste advies.
Vraag uw schatting aanNiet gevonden wat u zocht? Blijf op de hoogte van ons nieuwe aanbod.
We houden je graag als eerste op de hoogte over het nieuwste aanbod dat heel specifiek voldoet aan jou criteria.
Schrijf u in