- 152 m²
- 3 slaapkamers
VELDSTRAAT 22D BEGIJNENDIJK
Moderne gezinswoning gelegen in het rustige project Veldzicht.
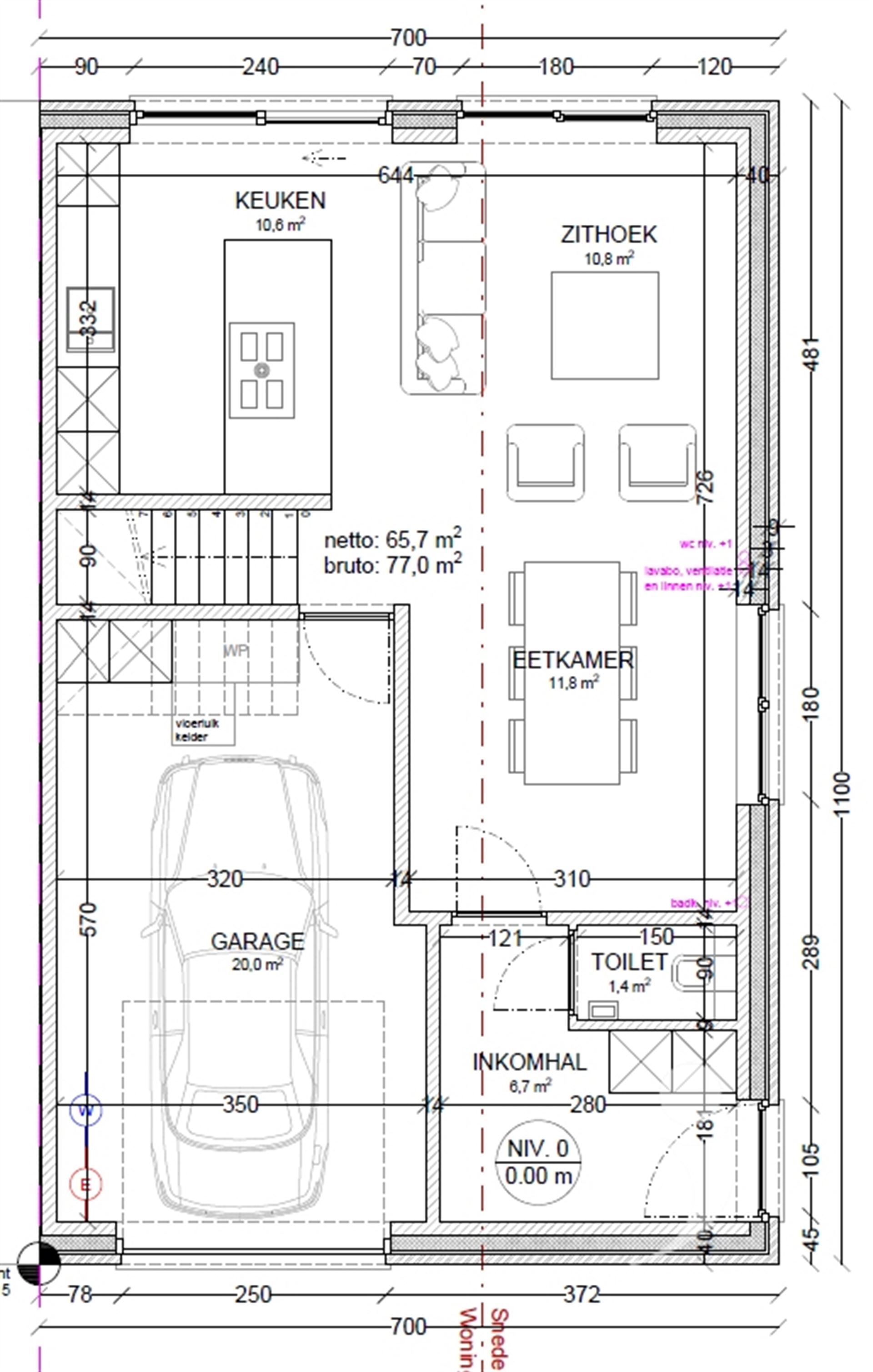
Het gelijkvloers verwelkomt je met een inkomhal en gastentoilet, een garage en een open leefruimte met zithoek, eetkamer en keuken. De grote ramen zorgen voor een aangename lichtinval en een prachtig uitzicht op de achterliggende weide.
Op de eerste verdieping vind je een nachthal, apart toilet, drie slaapkamers, een bergruimte met aansluiting wasmachine en droogkast en een badkamer met ligbad, douche en dubbele wastafel.
Deze woning is voorzien van zonnepanelen (4500 Wp), een warmtepomp gekoppeld aan vloerverwarming, ventilatiesysteem en regenwaterrecuperatie. Beslis tijdig en pas de woning naar jouw eigen wens aan!
*Project Veldzicht is momenteel in opbouw. Verkoop onder de Wet Breyne (12% registratierechten op de grond, 21% btw op de constructie).
Interesse in deze woning? Contacteer ons op 016 15 31 15 of info@immolivit.be
Het gelijkvloers verwelkomt je met een inkomhal en gastentoilet, een garage en een open leefruimte met zithoek, eetkamer en keuken. De grote ramen zorgen voor een aangename lichtinval en een prachtig uitzicht op de achterliggende weide.
Op de eerste verdieping vind je een nachthal, apart toilet, drie slaapkamers, een bergruimte met aansluiting wasmachine en droogkast en een badkamer met ligbad, douche en dubbele wastafel.
Deze woning is voorzien van zonnepanelen (4500 Wp), een warmtepomp gekoppeld aan vloerverwarming, ventilatiesysteem en regenwaterrecuperatie. Beslis tijdig en pas de woning naar jouw eigen wens aan!
*Project Veldzicht is momenteel in opbouw. Verkoop onder de Wet Breyne (12% registratierechten op de grond, 21% btw op de constructie).
Interesse in deze woning? Contacteer ons op 016 15 31 15 of info@immolivit.be
Leander Noterdame
016 15 31 15
leander@immolivit.be
- Nettoprijs
- € 439.500
- Beschikbaarheid
- Bij oplevering
- Bewoonbare opp.
- 152,0 m²
- Constructie
- Halfopen
- Bouwjaar
- 2026
- Verdieping(en)
- 2
- Gevelbreedte
- 7,0 m
- Type dak
- Platdak
- Perceel opp.
- 400,0 m²
- Terreinbreedte
- 10 m
- Terreindiepte
- 40 m
- Tuin
- Ja
- Oriëntatie tuin
- Noordwest
- Oriëntatie terras
- Noordwest
- Slaapkamers
- 3
- Badkamers
- 1
- Toiletten
- 2
- Type keuken
- Alle comfort
- Omgeving school
- 987 m
- Omgeving openbaar vervoer
- 402 m
- Omgeving station
- 605 m
- Garage
- 1
- E-level
- 30
- Type ramen
- PVC
- Beglazing
- Dubbele beglazing
- Elektriciteitskeuring
- Ja, conform
- Verwarming
- Warmtepomp
- Type verwarming
- Individueel
- Bestemming
- Woongebied
- Bouwvergunning
- Ja
- Verkavelingsvergunning
- Ja
- Voorkooprecht
- Nee
- Dagvaarding
- Geen rechterlijke herstelmaatregel of bestuurlijke maatregel opgelegd
- P-score
- A
- G-score
- A
- Kadaster sectie
- B
- Kadaster nummer
- 1227/00E000
- Kadaster afdeling
- 1
In de buurt
| Locatie | |||
|---|---|---|---|
| Bakker (0,95 km) | 12 min | 3 min | — |
| Grootwarenhuizen (Okay, Carrefour Market) (1,10 km) | 16 min | 5 min | — |
| Kinderdagverblijf Hupskadee (0,60 km) | 8 min | 2 min | — |
| Begijnendijk station (0,45 km) | 6 min | 2 min | — |
Uw eigendom verkopen? Vraag nu een gratis schatting aan!
De waarde van je eigen woning kennen kan je helpen bij je zoektocht naar iets nieuws. We geven je hierover graag het gepaste advies.
Vraag uw schatting aanNiet gevonden wat u zocht? Blijf op de hoogte van ons nieuwe aanbod.
We houden je graag als eerste op de hoogte over het nieuwste aanbod dat heel specifiek voldoet aan jou criteria.
Schrijf u in