- 152 m²
- 3 slaapkamers
VELDSTRAAT 22C BEGIJNENDIJK
Halfopen bebouwing met groen uitzicht!
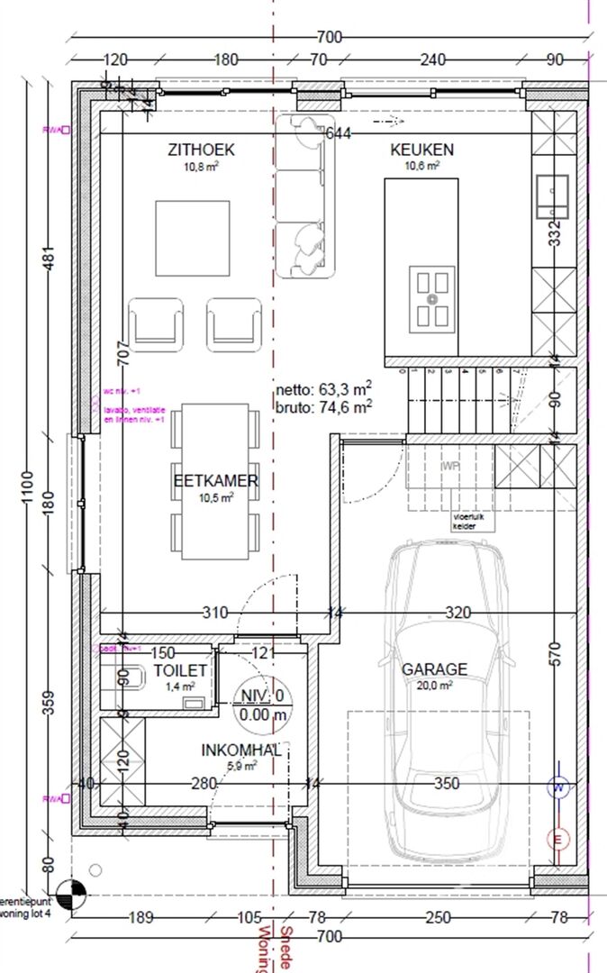
Het gelijkvloers omvat een inkomhal met gastentoilet, een garage en een open leefruimte met zithoek, eetkamer en keuken. Dankzij de grote raampartijen geniet je van een lichtrijke woning met zicht op de velden.
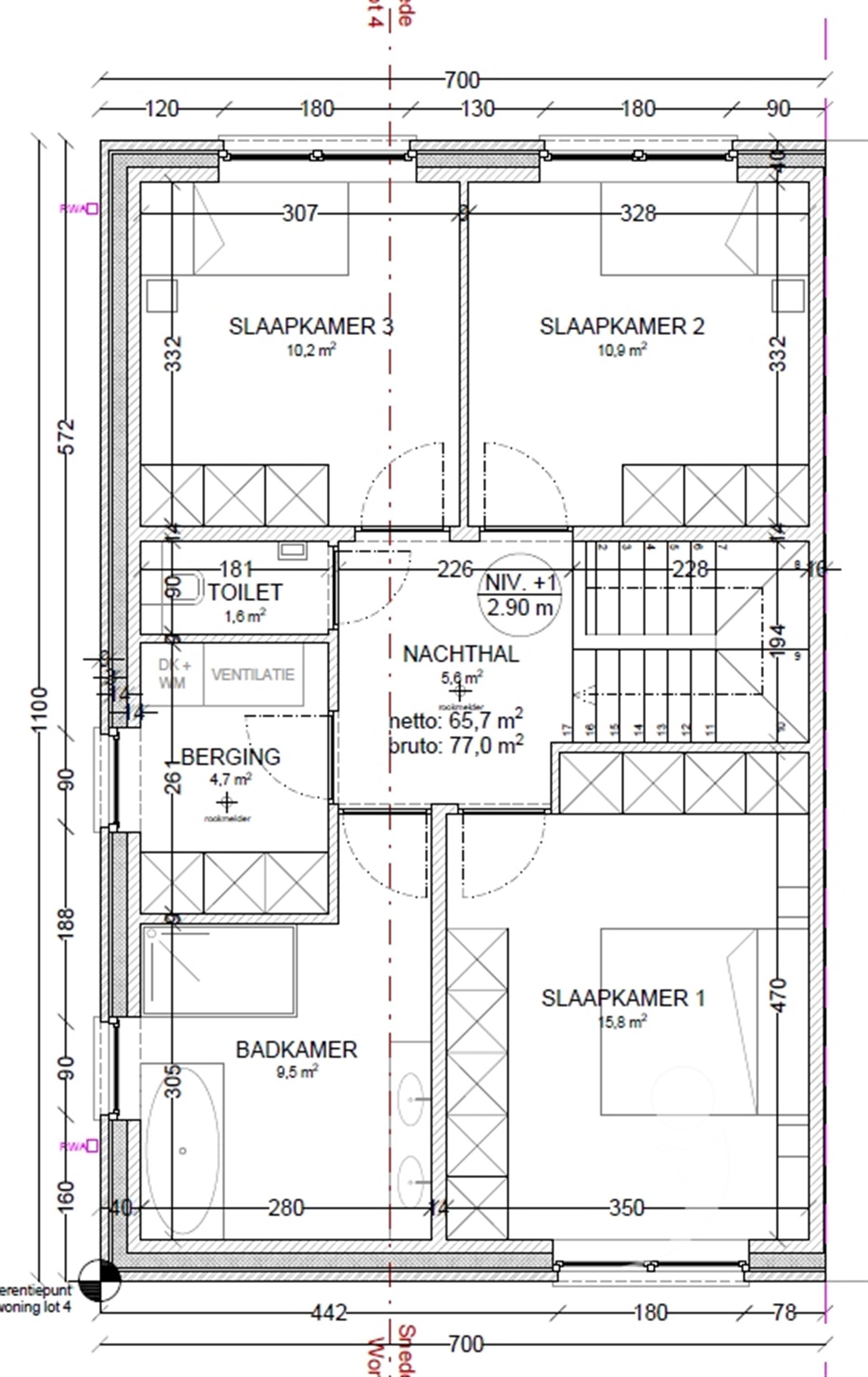
Op de eerste verdieping vind je een nachthal, apart toilet, drie volwaardige slaapkamers, een bergruimte met aansluitingen voor wasmachine en droogkast, en een badkamer met ligbad, douche en dubbele wastafel.
Deze energiezuinige woning is uitgerust met zonnepanelen (4500 Wp), warmtepomp met vloerverwarming, ventilatiesysteem en regenwaterrecuperatie. Beslis tijdig en pas de woning naar jouw eigen wens aan!
*Project Veldzicht is momenteel in opbouw. Verkoop onder de Wet Breyne (12% registratierechten op de grond, 21% btw op de constructie).
Interesse in deze woning? Contacteer ons op 016 15 31 15 of info@immolivit.be
Het gelijkvloers omvat een inkomhal met gastentoilet, een garage en een open leefruimte met zithoek, eetkamer en keuken. Dankzij de grote raampartijen geniet je van een lichtrijke woning met zicht op de velden.
Op de eerste verdieping vind je een nachthal, apart toilet, drie volwaardige slaapkamers, een bergruimte met aansluitingen voor wasmachine en droogkast, en een badkamer met ligbad, douche en dubbele wastafel.
Deze energiezuinige woning is uitgerust met zonnepanelen (4500 Wp), warmtepomp met vloerverwarming, ventilatiesysteem en regenwaterrecuperatie. Beslis tijdig en pas de woning naar jouw eigen wens aan!
*Project Veldzicht is momenteel in opbouw. Verkoop onder de Wet Breyne (12% registratierechten op de grond, 21% btw op de constructie).
Interesse in deze woning? Contacteer ons op 016 15 31 15 of info@immolivit.be
Leander Noterdame
016 15 31 15
leander@immolivit.be
- Nettoprijs
- € 439.500
- Beschikbaarheid
- Bij oplevering
- Bewoonbare opp.
- 152,0 m²
- Constructie
- Halfopen
- Bouwjaar
- 2026
- Verdieping(en)
- 2
- Gevelbreedte
- 7,0 m
- Type dak
- Platdak
- Perceel opp.
- 400,0 m²
- Terreinbreedte
- 10 m
- Terreindiepte
- 40 m
- Tuin
- Ja
- Oriëntatie tuin
- Noordwest
- Oriëntatie terras
- Noordwest
- Slaapkamers
- 3
- Badkamers
- 1
- Toiletten
- 2
- Type keuken
- Alle comfort
- Omgeving school
- 987 m
- Omgeving openbaar vervoer
- 402 m
- Omgeving station
- 605 m
- Garage
- 1
- E-level
- 30
- Type ramen
- PVC
- Beglazing
- Dubbele beglazing
- Elektriciteitskeuring
- Ja, conform
- Verwarming
- Warmtepomp
- Type verwarming
- Individueel
- Bestemming
- Woongebied
- Bouwvergunning
- Ja
- Verkavelingsvergunning
- Ja
- Voorkooprecht
- Nee
- Dagvaarding
- Geen rechterlijke herstelmaatregel of bestuurlijke maatregel opgelegd
- P-score
- A
- G-score
- A
- Kadaster sectie
- B
- Kadaster nummer
- 1227/00D000
- Kadaster afdeling
- 1
In de buurt
| Locatie | |||
|---|---|---|---|
| Bakker (0,95 km) | 12 min | 3 min | — |
| Grootwarenhuizen (Okay, Carrefour Market) (1,10 km) | 16 min | 5 min | — |
| Kinderdagverblijf Hupskadee (0,60 km) | 8 min | 2 min | — |
| Begijnendijk station (0,45 km) | 6 min | 2 min | — |
Uw eigendom verkopen? Vraag nu een gratis schatting aan!
De waarde van je eigen woning kennen kan je helpen bij je zoektocht naar iets nieuws. We geven je hierover graag het gepaste advies.
Vraag uw schatting aanNiet gevonden wat u zocht? Blijf op de hoogte van ons nieuwe aanbod.
We houden je graag als eerste op de hoogte over het nieuwste aanbod dat heel specifiek voldoet aan jou criteria.
Schrijf u in